
Listing provided courtesy of Jeff Eldridge of RE/MAX Hometown, Realtors. Last updated 2026-04-11 08:16:12.000000. Listing information © 2025 CLAW.
Asking Price: $1,300,000
3725 Old Cobble Road, San Diego CA 92111
Community: 92111 - Linda Vista
This Single Family Residence property was built in 1983 and is priced at $1,300,000. Please see the additional details below.
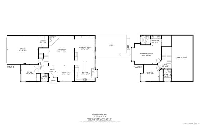
Clairemont's "Knolls of Foxrun", 74 detached Cape Cod style homes built on the rim of Tecolote Canyon just 1.7 miles east of Mission Bay. This home abounds with upgrades throughout! Custom kitchen and added family room boasting granite counters, custom gas range, hardwood cabinets, stainless fridge, dishwasher and microwave, wine fridge, all opening to a gorgeous backyard with water fountain, covered patio and built in new BBQ. (See Supplement) Welcome to the 85% owner occupied Knolls of Foxrun, 74 single family detached Cape Cod style homes built on the rim of Tecolote Canyon, located just 1.7 miles east of the waters of Mission Bay. This spectacular home abounds with upgrades throughout! Custom kitchen and added family room boasting granite counters, bran new custom gas range, hardwood cabinets, stainless fridge, dishwasher and microwave, wine fridge, all opening to a gorgeous backyard with water fountain, covered patio and built in new BBQ with wrap around countertop. Newer windows, central heating, central air conditioning, and solar! High living room ceilings with brick fireplace with gas log lighter. Downstairs bedroom or home office. Spacious master suite with double sinks in vanity and custom tile shower. Located within the Holmes Elementary school boundary, and within walking distance to High Tech High Mesa and Mesa College.





































